Top Stan I
sa krovnom terasom
Doživite besprimjernu raskoš u ovom luksuznom stanu sa prostranom krovnom terasom koja se neprimjetno uklapa u vanjski prostor.
Uživajte u prekrasnom pogledu i zalasku sunca, a sve to u vrhunskoj udobnosti svog uzdignutog utočišta.
VELIČINA
SPAVAĆE SOBE
KAT
- Dva parkirna mjesta
- Krovna terasa
Detalji
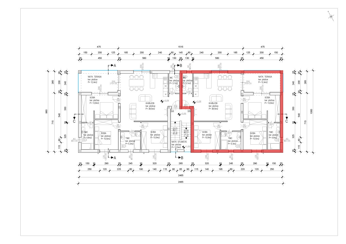
Prostorija | Veličina | Pogled |
|---|---|---|
Otvoreni koncept (dnevna soba + kuhinja) | 38,5 m2 | Pogled na more |
Spavaća soba (SS) s terasom (T) | SS: 13,6 m2 T: 12,4 m2 | Pogled na more |
Spavaća soba 1 | 10,9 m2 | Pogled na ulicu |
Spavaća soba 2 | 10,5 m2 | Pogled na ulicu |
Bathroom 1 | 5,3 m2 | Pogled na ulicu |
Kupaonica 2 | 4,8 m2 | Pogled na ulicu |
Toalet | 3,1 m2 | Pogled na more |
Krovna terasa | 57 m2 | Pogled na more |
Top Stan II
sa krovnom terasom
Doživite besprimjernu raskoš u ovom luksuznom stanu sa prostranom krovnom terasom koja se neprimjetno uklapa u vanjski prostor.
Uživajte u prekrasnom pogledu i zalasku sunca, a sve to u vrhunskoj udobnosti svog uzdignutog utočišta.
VELIČINA
SPAVAĆE SOBE
KAT
- Dva parkirna mjesta
- Krovna terasa
Detalji
Prostorija | Veličina | Pogled |
|---|---|---|
Otvoreni koncept (dnevna soba + kuhinja) | 38,5 m2 | Pogled na more |
Spavaća soba (SS) s terasom (T) | SS: 13,6 m2 T: 12,4 m2 | Pogled na more |
Bedroom 1 | 10,9 m2 | Pogled na ulicu |
Spavaća soba 2 | 10,5 m2 | Pogled na ulicu |
Bathroom 1 | 5,3 m2 | Pogled na ulicu |
Kupaonica 2 | 4,8 m2 | Pogled na ulicu |
Toalet | 3,1 m2 | Pogled na more |
Krovna terasa | 57 m2 | Pogled na more |
Srednji stan I
sa balkonom s pogledom na more
Uronite u izuzetnu udobnost ovog luksuznog stana koji se može pohvaliti balkonom s pogledom na more i tri velike spavaće sobe.
Guštajte u zadivljujućem vidiku, dok uživate u profinjenoj eleganciji svog prostranog i sofisticiranog stambenog prostora.
VELIČINA
SPAVAĆE SOBE
KAT
- Dva parkirna mjesta
- Balkon s pogledom na more
Detalji
Prostorija | Veličina | Pogled |
|---|---|---|
Otvoreni koncept (dnevna soba + kuhinja) | 38,5 m2 | Pogled na more |
Spavaća soba (SS) s terasom (T) | SS: 13,6 m2 T: 12,4 m2 | Pogled na more |
Spavaća soba 1 | 10,9 m2 | Pogled na ulicu |
Spavaća soba 2 | 10,5 m2 | Pogled na ulicu |
Bathroom 1 | 5,3 m2 | Pogled na ulicu |
Kupaonica 2 | 4,8 m2 | Pogled na ulicu |
Toalet | 3,1 m2 | Pogled na more |
Srednji stan II
sa balkonom s pogledom na more
Uronite u izuzetnu udobnost ovog luksuznog stana koji se može pohvaliti balkonom s pogledom na more i tri velike spavaće sobe.
Guštajte u zadivljujućem vidiku, dok uživate u profinjenoj eleganciji svog prostranog i sofisticiranog stambenog prostora.
VELIČINA
SPAVAĆE SOBE
KAT
- Dva parkirna mjesta
- Balkon s pogledom na more
Detalji
Prostorija | Veličina | Pogled |
|---|---|---|
Otvoreni koncept (dnevna soba + kuhinja) | 38,5 m2 | Pogled na more |
Bedroom (R) with terrace (T) | SS: 13,6 m2 T: 12,4 m2 | Pogled na more |
Bedroom 1 | 10,9 m2 | Pogled na ulicu |
Spavaća soba 2 | 10,5 m2 | Pogled na ulicu |
Bathroom 1 | 5,3 m2 | Pogled na ulicu |
Kupaonica 2 | 4,8 m2 | Pogled na ulicu |
Toalet | 3,1 m2 | Pogled na more |
Prizemni stan I
S dvorištem s pogledom na more
Otkrijte šarm ovog luksuznog prizemnog stana koji se sastoji od dvorišta s pogledom na more i dvije prostrane spavaće sobe.
Uživajte u savršenom spoju unutarnjeg i vanjskog života, gdje se obalna ljepota susreće s modernom elegancijom, stvarajući spokojno i primamljivo utočište.
VELIČINA
SPAVAĆE SOBE
KAT
- Dva parkirna mjesta
- Dvorište s pogledom na more
Detalji
Prostorija | Veličina | Pogled |
|---|---|---|
Otvoreni koncept (dnevna soba + kuhinja) | 29 m2 | Pogled na more |
Spavaća soba 1 | 13,6 m2 | Pogled na ulicu |
Spavaća soba 2 | 10,3 m2 | Pogled na ulicu |
Kupaonica 1 | 4,9 m2 | Pogled na ulicu |
Kupaonica 2 | 3,9 m2 | Pogled na ulicu |
Prizemna terasa | 12 m2 | Pogled na ulicu |
Stražnje dvorište | 77 m2 | Pogled na more |
Prizemni stan II
s dvorištem s pogledom na more
Otkrijte šarm ovog luksuznog prizemnog stana koji se sastoji od dvorišta s pogledom na more i dvije prostrane spavaće sobe.
Uživajte u savršenom spoju unutarnjeg i vanjskog života, gdje se obalna ljepota susreće s modernom elegancijom, stvarajući spokojno i primamljivo utočište.
VELIČINA
SPAVAĆE SOBE
KAT
- Dva parkirna mjesta
- Dvorište s pogledom na more
Detalji
Prostorija | Veličina | Pogled |
|---|---|---|
Otvoreni koncept (dnevna soba + kuhinja) | 28,9 m2 | Pogled na more |
Spavaća soba 1 | 13,9 m2 | Pogled na ulicu |
Spavaća soba 2 | 10,4 m2 | Pogled na ulicu |
Kupaonica 1 | 4,8 m2 | Pogled na ulicu |
Kupaonica 2 | 3,9 m2 | Pogled na ulicu |
Prizemna terasa | 12 m2 | Pogled na more |
Stražnje dvorište | 57 m2 | Pogled na more i ulicu |
Prizemni stan III
s dvorištem s pogledom na more
Otkrijte šarm ovog luksuznog prizemnog stana koji se sastoji od dvorišta s pogledom na more i dvije prostrane spavaće sobe.
Uživajte u savršenom spoju unutarnjeg i vanjskog života, gdje se obalna ljepota susreće s modernom elegancijom, stvarajući spokojno i primamljivo utočište.
VELIČINA
SPAVAĆE SOBE
KAT
- Dva parkirna mjesta
- Dvorište s pogledom na more
Detalji
Prostorija | Veličina | Pogled |
|---|---|---|
Otvoreni koncept (dnevna soba + kuhinja) | 24,7 m2 | Pogled na more |
Spavaća soba 1 | 12,8 m2 | Pogled na more |
Spavaća soba 2 | 10,5 m2 | Pogled na more |
Kupaonica 1 | 5,0 m2 | Pogled na ulicu |
Kupaonica 2 | 3,7 m2 | Pogled na more |
Hodnik | 6,7 m2 | Pogled na ulicu |
Prizemna terasa | 12 m2 | Pogled na more |
Stražnje dvorište | 82 m2 | Pogled na more |
HR
DE
CZ
EN 
































